Естественная и принудительная циркуляция
Циркуляционный насос
По способу движения жидкости внутри отопительного контура различают два вида двухтрубных систем:
1С естественной циркуляцией. Движение жидкости обеспечивается за счет ее температурного расширения и уменьшения плотности при нагреве. Более легкая горячая вода вытесняется вверх из котла, достигнув высшей точки вертикальной разгонной трубы, она стекает по наклонному трубопроводу вниз, поступая в радиаторы. Внутри приборов отопления вода постепенно остывает, отдавая тепло, становится все более плотной и самотеком движется в котел
2С принудительной циркуляцией. Схема предусматривает использование циркуляционного насоса, который обеспечивает движение жидкости по замкнутому контуру
Особенности функционирования
Естественная циркуляция
Системы с естественной циркуляцией (гравитационные) используются все реже. Их достоинством является энергонезависимость, отсутствие воздушных пробок и долговечность – отсутствуют элементы и механизмы, склонные к быстрому износу. При этом есть сложности с проектированием, подбором угла наклона труб и их сечения. Чтобы обеспечить наибольшую возможную скорость движения теплоносителя, сечение трубопровода меняют по мере удаления от котла.
Принудительная циркуляция – современный выбор, циркуляционный насос позволяет эффективно и равномерно прогревать все радиаторы за счет высокой скорости движения теплоносителя. По этой же причине на нагрев остывшей жидкости тратится минимум энергии – перепад температур в подающем и обратном контурах небольшой.
Принудительная циркуляция
Кроме того, проще проектировать и прокладывать трубопровод – не требуется рассчитывать и строго соблюдать при монтаже угол наклона труб. Применяются трубы меньшего диаметра, если сравнивать с гравитационными системами, и это снижает затраты.
К недостаткам отопительной системы с принудительной циркуляцией относят зависимость от электроснабжения, расходы на покупку насоса и арматуры, необходимой для его функционирования.

Печь на отработке: виды, устройство, чертежи, инструкция по изготовлению своими руками (Фото & Видео) +Отзывы
Типы принудительной циркуляции носителя тепла в обогреве
Применение схем отопления с принудительной циркуляцией в двухэтажных домах используется из-за протяжённости линий системы (более 30 м). Такой способ осуществляется при помощи циркуляционного насоса, перекачивающего жидкость контура. Он монтируется на входе в отопительный прибор, где температура теплоносителя является самой низкой.
При замкнутом контуре степень напора, которую развивает насос, не зависит от этажности и площади строения. Скорость водяного потока становится больше, поэтому при прохождении по трубопроводным линиям теплоноситель сильно не остывает. Это способствует более равномерному распределению тепла по всей системе и использованию теплогенератора в щадящем режиме.
Расширительный бак можно располагать не только в наивысшей точке системы, но и возле котла. Для совершенства схемы проектировщики ввели в неё разгонный коллектор. Теперь, если отключится электроэнергия с последующей остановкой насоса, система будет продолжать работу в режиме конвекции.
- с одной трубой;
- двумя;
- коллекторная.
Каждую можно смонтировать самим или пригласить специалистов.
Вариант схемы с одной трубой
На входе в батарею также монтируется запорная арматура, которая служит для регулировки температуры в комнате, а также необходимая при замене оборудования. Сверху радиатора устанавливают вентиль для спуска воздуха.
Вентиль на батареи
Чтобы повысить равномерность распределения тепла, радиаторы устанавливаются по линии байпасов. Если не использовать эту схему, то потребуется подбирать батареи разной мощности с учетом потери носителя тепла, то есть чем дальше от котла, тем больше секций.
Использование запорной арматуры необязательно, но без нее снижается маневренность всей системы отопления. При необходимости вы не сможете отключить от сети второй или первый этаж для экономии топлива.
Чтобы уйти от неравномерного распределения носителя тепла, используют схемы с двумя трубами.
- тупиковая;
- попутная;
- коллекторная.
Варианты тупиковой и попутной схем
Попутный вариант позволяет легко контролировать уровень тепла, но необходимо увеличивать длину трубопровода.
Наиболее эффективной признана коллекторная схема, которая позволяет подводить к каждому радиатору отдельную трубу. Тепло поступает равномерно. Есть один минус – высокая стоимость оборудования, так как увеличивается количество расходного материала.
Схема коллекторного горизонтального отопления
Существуют еще вертикальные варианты подачи носителя тепла, которые встречаются с нижней и верхней разводкой. В первом случае сток с подачей носителя тепла проходит сквозь этажи, во втором, стояк идет вверх от котла на чердак, где идет разводка труб на элементы обогрева.
Вертикальная схема
Двухэтажные дома могут иметь самую разную площадь, начиная от нескольких десятков и заканчивая сотнями квадратных метров. Также они отличаются расположением комнат, наличием пристроек и отапливаемых веранд, положением к сторонам света. Ориентируясь на эти и многие другие факторы, следует определиться с естественной или принудительной циркуляцией теплоносителя.
Простая схема циркуляции теплоносителя в частном доме с системой отопления с естественной циркуляцией.
Схемы отопления с естественной циркуляцией теплоносителя отличаются своей простотой. Здесь теплоноситель движется по трубам самостоятельно, без помощи циркуляционного насоса – под действием тепла он поднимается вверх, попадает в трубы, распределяется по радиаторам, остывает и попадает в обратную трубу, чтобы вновь отправиться в котел. То есть, теплоноситель движется самотеком, подчиняясь законам физики.
Схема закрытой двухтрубной системы отопления двухэтажного дома с принудительной циркуляцией
- Более равномерный прогрев всего домовладения;
- Значительно большая длина горизонтальных участков (в зависимости от мощности используемого насоса, она может достигать нескольких сотен метров);
- Возможность более эффективного подключения радиаторов (например, по диагональной схеме);
- Возможность монтажа дополнительной фурнитуры и изгибов без риска снижения давления ниже минимального предела.
Таким образом, в современных двухэтажных домах лучше всего использовать отопительные системы с принудительной циркуляцией. Также возможен монтаж байпаса, который поможет выбирать между принудительной или естественной циркуляцией в целях выбора наиболее оптимального варианта. Мы делаем выбор в сторону принудительных систем, как более эффективных.
https://www.youtube.com/watch?v=olrD9qxCAhM
У принудительной циркуляции есть парочка недостатков – это необходимость в покупке циркуляционного насоса и повышенный уровень шума, связанный с его работой.
Варианты отопительных разводок
1. Лучевая система
Это трубопровод с вмонтированными коллекторами и дроссельными заслонками возле каждого отвода. К каждой батарее идёт пара трубок, идущих от каждого отвода. Тепло регулируется довольно-таки легко, но при инсталляции возникают осложнения: необходимо прятать в бетонной стяжке пола или под фальшстенами десяток труб.
Коллекторная (лучевая) схема отопления одноэтажного дома:

Монтаж такой системы выльется в круглую сумму. Зато она самая эффективная в плане экономии тепла.
2. Двухтрубная схема отопления
Во всём доме, по периметру или под полом, тянутся два трубопровода – подачи и обратки. Батареи, фанкойлы, конвекторы, — всё это играет роль перемычек и создаёт подобие короткого замыкания. Вода циркулирует от ближней батареи к дальней. Поэтому дроссельные заслонки будут ограничивать проходящую через батареи горячую воду. Для равномерного тепла в каждой комнате необходимо тонко балансировать систему.
Двухтрубная схема отопления одноэтажного дома:

- большой расход трубы и материалов;
- без балансировки происходит замерзание труб и батарей.
3. Однотрубная схема отопления дома
Считается самой простой. Иногда её называют, по старинке, «ленинградкой». При монтаже такой системы по периметру всего дома и во всех жилых помещениях укладывают трубу на 25-32-40 мм. Почему обязательно в жилых комнатах? Всё просто: паразитное тепло, которое выделяется трубой, тоже будет обогревать всю комнату.
Однотрубная схема отопления одноэтажного дома:

Или вот схема отопления одноэтажного частного дома в одноконтурном варианте:

Радиаторы и конвекторы врезаются для закольцовки, но с использованием трубы двадцатки. На всех подводах устанавливаются дроссельные заслонки и краны. Первые уравнивают температуру, а другие — выпускают воздух. Если бы не было вентилей (кранов), то вода вытеснила бы воздух в верхнюю часть отопительного элемента. А это, в свою очередь, делает меньше количество отдаваемого тепла.
- тепло практически не теряется;
- простота и быстрота монтажных работ;
- экономное использование;
- при отсутствии электричества, отключающее циркуляционный насос, движение воды не остановится;
- экономия материалов.
Так какую же систему отопления выбрать в одноэтажном доме? Можно отметить лишь один, но существенный факт, который повлияет на ваш выбор – возможность устанавливать любую из перечисленных схем в одноэтажных домах и коттеджах: лучевая, однотрубная, двухтрубная, электрическая, воздушная и даже систему «водяного пола».
О последних трёх мы не упоминали, но они также популярны последнюю систему («тёплый пол») пару лет назад использовали только в саунах, но сегодня её относят к полноценному виду отопительных систем, которые полноценно обеспечивает теплом весь дом.
К причинам, повлёкшим выбор той или иной системы, можно отнести и площадь дома, и срок проживания (постоянный или временный), и из чего построен дом (кирпич, блок или деревянный брус).
Самотечное отопление
В основе системы, где используется естественная циркуляция, лежит конвекция. Согласно этому принципу, нагретая жидкость стремится перейти в верхний слой воздуха по трубе, а ее место занимают холодные слои атмосферы. Котел начинает постепенно нагревать воду, которая теряет свой вес и двигается по трубе через вертикальное сооружение – после этого она постепенно расходится по нескольким ветвям батареи. Такую систему можно часто увидеть в двухэтажных зданиях. Особенности установки этой схемы:
- Используется горизонтальная верхняя разводка, которая начинается от общей части стояка. Сам же он начинает подниматься над котлом, где на вершине монтируют расширительный бак, активно взаимодействующий с атмосферой.
- При укладке специалисты следят, чтобы минимальный наклон составлял 3 мм на метр. Труба подачи всегда склоняется в сторону к радиатору, а обратная часть наклоняется к источнику тепловой энергии.
- Если сравнить тип труб со стандартными напорными системами, то здесь они намного больше – подразумевается, что здесь вода будет двигаться с небольшой скоростью.
Если дом одноэтажный, то радиаторы будут подключены поодиночке. Здесь вся подающая часть проводится через потолок или чердак, а обратные элементы находятся под полом. Здесь уже не получится смонтировать нижнюю разводку, поскольку теплоноситель двинется в сторону батареи, а значит, что количество тепла в помещении уменьшится.
Самотечная система отопления с естественной циркуляцией
Основные критерии выбора системы отопления
Грамотно выбрать эффективное отопление возможно только при наличии познаний в теплотехнике. Если обустройство системы выполняется в небольшом одноэтажном доме, то провести необходимые расчеты можно самостоятельно. Если же это коттедж в два и более этажа, то лучше предоставить выбор системы профессионалам.
Основным критерием в выборе отопительного оборудования является площадь строения. Открытая схема с одноконтурным вариантом трубопровода хороша для небольших зданий в не более чем три этажа. Единственное «но» заключается в неудобстве внедрения в систему расширительного бака и проведении ремонта в случае какой-либо неполадки.
В высотных постройках преимущества на стороне двухконтурных систем закрытого типа. Они равномерно прогревают все радиаторы. К тому же есть возможность контролировать температуру теплоносителя в любом из подключенных контуров.
https://youtube.com/watch?v=XPku9lhd7Vk
Выбор отопительной системы
По типу теплоносителя для двухэтажных домов отопление выделяют:
- Воздушное. В качестве источника тепла выступает газовая печь. Главным недостатком является постоянное падение уровня кислорода в комнатах. Данный тип применяется в двухэтажных домах без постоянного проживания людей
- Комбинированное.
- Паровое. Теплоносителем является водяной пар. Из-за сложности внедрения практически не используется.
- Водяное. Наиболее целесообразный тип отопительной системы, теплоносителем в которой является подогретая вода. Выделяют несколько схем: с искусственной и естественной циркуляцией. Типы рассмотрены ниже.
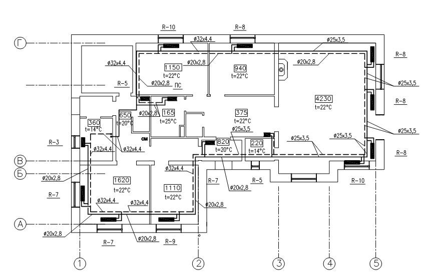
Технические характеристики
Для отопления используют многослойные изделия. Они армированы алюминиевой фольгой или стекловолокном. Стекловолокно подвержено линейному расширению при нагревании, что нужно учитывать при прокладке сетей. Отопление из полипропилена выполняется только из армированных полипропиленовых труб, они используются в системах теплого пола.
Характеристики армированных труб на примере продукции фирмы VALTEC.
Таблица 1.
| Характеристики | Материал армирования | |||||
| Алюминиевая фольга | Фибра из стекловолокна | |||||
| Диам/толщ. стенки трубы мм | 25/4,2 | 32/5,4 | 40/6,7 | 25/3,5 | 32/4,4 | 40/5,5 |
| Условный проход, мм | 16,6 | 21,2 | 26,6 | 18 | 23,2 | 29 |
| Давление, атм | 25 | 25 | 25 | 20 | 20 | 20 |
| Вес 1 м, кг | 0,261 | 0,445 | 0,88 | 0,255 | 0,424 | 0,66 |
| Плотность г/см3 | 0,9 | 0,9 | ||||
| Максим. усилие разрыва МПа | 35,0 | 35,0 | ||||
| Теплоемкость кДж | 1,75 | 1,75 | ||||
| Линейное расширение 1/ ºС | 3,1х10 -5 | 6,2х10 -5 | ||||
| Коэффициент теплопроводности, Вт/(м ºС) | 0,24 | 0,15 |
Ознакомившись с характеристиками изделий из пропилена, можно наглядно представить, на каком варианте остановить выбор.
Выбор отопительной системы
По типу теплоносителя для двухэтажных домов отопление выделяют:
- Воздушное. В качестве источника тепла выступает газовая печь.
Главным недостатком является постоянное падение уровня кислорода в комнатах. Данный тип применяется в двухэтажных домах без постоянного проживания людей - Комбинированное.
- Паровое. Теплоносителем является водяной пар. Из-за сложности внедрения практически не используется.
- Водяное. Наиболее целесообразный тип отопительной системы, теплоносителем в которой является подогретая вода.
Выделяют несколько схем: с искусственной и естественной циркуляцией. Типы рассмотрены ниже.
Лучевой способ подключения
Если сравнивать все представленные способы подключения, то это считается наиболее популярным и технологичным. В его структуру входят следующие детали:
- Нагревательные элементы: они могут быть обычными батареями, контурами в системе теплый пол или внутрипольными конвекторами;
- Подающий и обратный коллекторы, в которых расположены термостатические вентили и расходомеры;
- Двухтрубные подводки, которые устанавливают от коллектора к приборам для обогрева по наиболее оптимальному маршруту (они могут располагаться в перекрытии, под полом, потолком).
Лучевой способ подключения
Проект отопления двухэтажного дома
Наиболее комфортные условия (22 – 24 градуса) поддерживают:
- в детских и комнатах пожилых людей;
- в ванной комнате и туалете;
- в сауне, спортзале или бассейне.
Для следующей группы помещений нормами установлена температура от 21 градуса:
- спальни и комнаты для гостей;
- комнаты обслуживающего персонала;
- помещения, сдаваемые внаем.
В жилой зоне минимально допустимая температура составляет 18°С:
- гостиная;
- рабочий кабинет;
- столовая.
В кухне, домашней мастерской или зимнем саду обычно устанавливаются дополнительные средства обогрева, стационарная же система отопления рассчитывается на 15 – 16 градусов.
В проходной зоне, куда входят прихожая, гараж или лестничная клетка, минимальная температура составляет 12 градусов.

Типовая схема отопления и водоснабжения коттеджа
Далее выполняют расчет теплопотерь, в котором помимо указанных температур учитывают:
- Термическое сопротивление материалов, из которых сделаны ограждающие конструкции.
- Средняя температура самого холодного месяца в регионе строительства, а также за весь отопительный сезон.
- Коэффициент сезонной работы котла (для средней полосы – 0,5, севернее – 0,7, южнее – 0,3).
Величина теплопотерь через ограждающую конструкцию рассчитывается по формуле:
W= A * dT * (1/R * S),
где
- W – мощность тепловых потерь;
- А – площадь поверхности ограждающей конструкции;
- dT – разница между внутренней и наружной температурами;
- R – термическое сопротивление материала (при расчете многослойной конструкции данные параметры для каждого слоя необходимо суммировать);
- S – толщина слоя материала.
По вычисленным теплопотерям подбирают радиаторы в каждое помещение (их теплоотдача должна компенсировать утечки тепла с запасом в 20%) и теплогенератор.
Схема с теплым полом
Подача воды происходит через коллектор, второй служит для обратного хода теплоносителя.
Основные узлы (базовый вариант):
- Коллекторные шкафы. Для обеспечения правильного хода жидкости. Устанавливаются в доступном для обслуживания месте.
- Приборы КИПиА: термометры и манометры.
- Запорная арматура, компрессионные фитинги, переходники.
- Трубопровод.
- Система теплый пол.
Единственным недостатком является то, что в обычной схеме невозможно осуществлять контроль температуры теплоносителя, необходимо предусмотреть регулировку.
Для повышения КПД, схему дополняют следующими элементами:
- Циркуляционный насос. Применяется в случае необходимости увеличить напор. Установка предусмотрена на обратном контуре.
- Трехходовой смеситель.
- Клан для сброса жидкости.
- Насосно-смесительный узел. Применятся для: снижения температуры в системе, возврата остывшей жидкости обратно в систему. устанавливается за коллектором подачи воды.
Важно! Взамен запорной арматуры возможно применение смесителей (термостатических). Таким образом, подача воды осуществляется без рывков

Схема подключения водяного теплого пола к котлу
Принудительная циркуляция
Нейтрализация практически всех перечисленных недостатков достигается введением в состав системы циркуляционного насоса. В результате теплоноситель получает дополнительный импульс, благодаря которому эффективно преодолевает гидравлическое сопротивление трубопровода. Однотрубная разводка системы отопления в настоящее время является наиболее популярным решением в частных домах.
Местом установки помпы может выступать любой участок магистрали. Однако следует иметь в виду, что при воздействии горячей воды на резиновые элементы (прокладки), срок службы насоса заметно снижается. Поэтому прибор стараются устанавливать на обратной трубе, т.к. теплоноситель там не такой горячий. Перед помпой обязательно врезается фильтр грубой очистки, во избежание попадания внутрь механизма различных загрязнений. При подключении всех приборов и устройств рекомендуется использовать запорную арматуру и байпасы. Это заметно упростит ремонтные и обслуживающие мероприятия на отдельных узлах: в таком случае нет нужды в остановке всей системы и полного сливания теплоносителя.
Сильные стороны отопительных контуров с принудительной циркуляцией:
- Возможность использования более сложных разветвленных схем, приводящих к увеличению общей длины контуров.
- Можно не увеличивать диаметр труб. Благодаря помпе внутри системы создается достаточное для движения и равномерного распределения жидкости давление.
- Циркуляция имеет стабильную скорость. На этот показатель не влияет уровень нагревания теплоносителя и установка разгонного коллектора.
- Нет необходимости в организации углов наклона на горизонтальных участках трубопровода, т.к. для стимуляции движения теплоносителя используют насос.
- Появляется возможность врезки регулирующих приборов на всех батареях, что обеспечивает поддержание оптимального уровня обогрева, снижая энергозатраты и расходы на отопление.
Имеются также недостатки:
- Нужда в наличии электрического питания.
- Шум от работающей помпы.
- Необходимость дополнительных капиталовложений (если сравнивать с гравитационной схемой).
Нейтрализация их обычно не вызывает сложностей. Для поддержания стабильного энергообеспечения проводится установка автономного электрогенератора. Очень хорошо зарекомендовали себя системы, предусматривающие возможность перехода на режим с естественной циркуляцией. Чтобы снизить шум от работающего насоса, его обычно устанавливают в нежилом помещении.
Способы циркуляции теплоносителя
Существует два вида циркуляции теплоносителя – естественная и принудительная. В первом случае вода в системе перемещается под воздействием физических процессов, а для принудительной схемы требуется циркуляционный насос, создающий необходимое давление для продвижения теплоносителя. Особенности этих систем нужно рассмотреть перед тем, как провести отопление на второй этаж.
Системы с естественной циркуляцией характеризуются следующими достоинствами:
- Практически бесшумная работа отопления;
- Простой монтаж и обслуживание;
- Долговечность.
Достоинства не самые значительные, особенно если рассматривать их на фоне недостатков. А недостатков много: во-первых, системы с естественной циркуляцией очень трудно запускать, во-вторых, при отрицательных температурах вода в трубах может попросту замерзнуть, а в-третьих, для обустройства требуются трубы с увеличенным диаметром, которые обходятся дороже. Именно по этим причинам схема отопления двухэтажного дома с естественной циркуляцией практически не используется.
Решая, как провести отопление в двухэтажном доме, лучше обратить внимание на отопительные системы с принудительной циркуляцией, которые отличаются следующими достоинствами:
- Возможность прокладки системы любой необходимой длины;
- Стабильная работа системы независимо от внешних условий;
- Простота настройки отопления.
Универсальная схема подключения отопления в двухэтажном частном доме – это двухтрубная система, совмещенная с двухконтурным котлом и принудительной циркуляцией. К такой системе можно будет подключить массу дополнительных узлов, да и регулировать работу отопления будет очень просто.
Виды систем отопления
Обустроить двухэтажный дом и провести трубы можно самому, но лучшее решения – если система будет собрана профи. Тогда отопление 2-х этажного дома окажется наиболее эффективным.
Схема отопления 2-х этажного частного дома различается по множеству характеристик. К примеру, отопление может предусматривать одну или две трубы для подачи теплоносителя, независимо от того, принудительная циркуляция или естественная.
В первом случае отопление двухэтажного частного дома осуществляется, если трубы имеют незначительную длину. Однотрубная система предполагает, что, выполнив отопление 2-х этажного дома, вода из радиаторов не идет в котел, а попадает в трубы с горячей и смешивается с ней. В результате начинается циркуляция охлажденной воды, и эффективное отопление 2-х этажного дома на удаленных участках трубы становится затруднительным.
Поэтому отопление двухэтажного дома в варианте с однотрубной системой, не рекомендуется разрабатывать самостоятельно, а тем более производить сборку труб своими руками. Исключение составляет ленинградка – это несложная в реализации однотрубная система отопления в двухэтажный дом, ее схема входит в лучшие по простоте. Ленинградка позволяет сделать отопление двухэтажного дома без особых усилий.
Отлично себя зарекомендовала двухтрубная система отопления двухэтажного дома – у нее только принудительная циркуляция, естественная не предусмотрена. Система имеет две трубы, так что жидкость по пути в котел, будь это двухконтурный котел или нет, не попадает в трубы с холодной водой, как предполагает однотрубная система отопления. Более продуманная двухтрубная разводка позволяет избежать тепловых потерь, благодаря чему отопление 2-х этажного дома становится эффективным. Более того, двухтрубная система отопления отлично подойдет в случаях, когда 2-х этажный дом имеет значительную площадь, а трубы – большую длину.
Схема и система могут предусматривать, чтобы циркуляция теплоносителя была естественная и принудительная. Это лучшие варианты, если отопление запланировано сделать экономичным. Естественная циркуляция, когда нужно отопление 2-х этажного дома, происходит благодаря нагреву и охлаждению воды внутри трубы. Система отопления с естественной циркуляцией стоит сравнительно дешево. Альтернатива – принудительная циркуляция, когда в 2-х этажный частный дом проводится отопление с электрической помпой.
Сам котел в двухэтажный дом бывает двухконтурный и одноконтурный. Двухконтурный котел зарекомендовал себя лучше, ведь в 2-х этажный дом через трубы получится провести не только отопление, но и горячую воду.
Для этого монтируются дополнительные трубы, которые имеет система водоснабжения, отопление – отдельно. Схема для них в двухэтажный дом разрабатывается отдельно своими руками или с привлечением специалиста. Но если нужно отопление 2-х этажного частного дома, не всегда подойдет двухконтурный котел. С помощью видео и фото получится оценить, какая система лучше, и выбрать подходящее отопление.



































