Вагонка для обшивки помещения
Следует ответственно подойти к выбору древесины для облицовки. Наибольшая устойчивость к гниению присуща хвойным породам, но при нагревании они способны выделять смолу. Поэтому их лучше использовать при обшивке предбанника или моечной. Из лиственных видов оптимальным сопротивлением обладает дуб, однако, смоченный, он становится скользким. Немаловажный фактор при выборе вагонки – эстетическая сторона вопроса. У кедра, дуба и ольхи насыщенный темный цвет, в то время как лиственница, граб и ель имеют более светлую окраску.
Окна и двери в бане
Их желательно делать деревянными, для чего подойдут сосна или ясень, а покрывать лаком допускается только снаружи, иначе не избежать вредных испарений. По тем же причинам не рекомендуется применение монтажной пены в качестве уплотнителя, лучше использовать натуральные материалы, например, войлок.
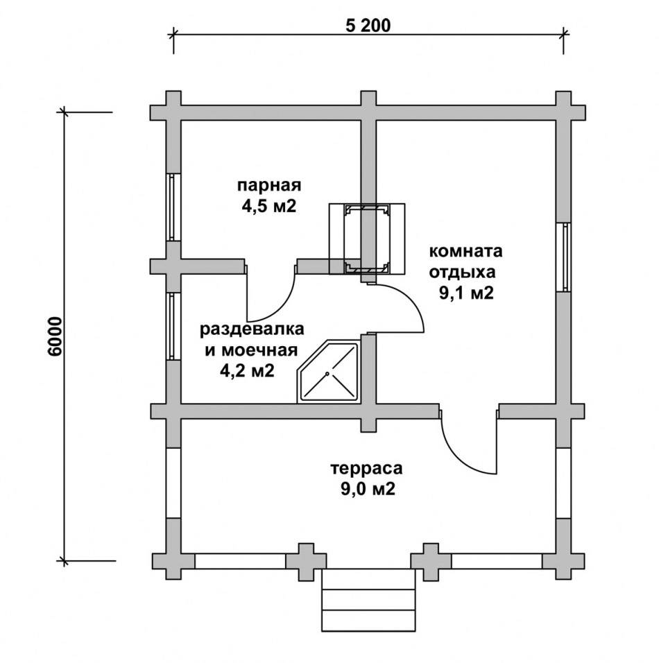
Отдельное внимание следует уделить двери в парилку – она должна открываться исключительно наружу и закрываться только на шариковую защелку, чтобы распахнуться просто от толчка или под весом тела, если кому-либо из посетителей станет плохо. Размеры – меньше стандартных (во избежание растраты тепла)
Электропроводка в бане
При самостоятельном монтаже электросети не следует забывать, что в стенах из газобетона кабель, заведенный в гофрированную трубку, прокладывается по штробам, прорезанным в блоках. Предварительно рекомендуется тщательно разработать схему расположения электроприборов, а также точек освещения, розеток и включателей внутри помещения.
Согласно расчетной мощности светильников и других потребителей электроэнергии необходимо подобрать кабель подходящего сечения, чтобы избежать перегрузок и нагрева провода. Так как баня – помещение повышенной влажности, то изоляция электросети должна обеспечивать максимальную безопасность, а розетки не следует располагать слишком близко от пола.
На входе электросети в помещение бани рекомендуется установить коробку-автомат. Также желательно каждую ветку проводки, в соответствии со схемой, снабдить отдельным предохранителем. Это достаточно ответственная часть работ в монтаже электрооборудования, поэтому, если не получается сделать своими руками – лучше пригласить специалистов.
Характеристика газобетонных изделий
Этот строительный материал имеет много достоинств:
- Легкость. Несмотря на то, что блоки большие по размеру, они очень легкие, это значительно упрощает работу. Даже неопытному строителю под силу выстроить баню из газоблока своими руками.
- Теплоизоляция. Благодаря пористой структуре, газобетон обладает хорошими теплоизоляционными свойствами. Если построить баню из газобетона, то она будет меньше нуждаться в утеплении.
- Долговечность и пожаробезопасность. Это прочный материал, не поддающийся гниению, плесени и нападению мелких грызунов, устойчивый к возгоранию. Такие свойства обеспечивают долгий срок службы газобетонных изделий.
- Податливость. Газобетонные блоки хорошо поддаются обработке вручную. Это позволяет выстраивать любую по сложности конструкцию практически без отходов.
- Безвредность. С экологической точки зрения газобетон полностью безопасен, что подтверждено ведущими экспертами в этой области.
- Доступность в цене. По сравнению с другими строительными материалами газобетон отличается низкой стоимостью.
Кроме положительных свойств газобетонный материал имеет один недостаток – впитывание влаги, поэтому нуждается во внешней отделке.
Гидроизоляция бани из газобетона своими руками
Обустройство гидроизоляции — работа особой важности, которую нужно выполнять должным образом. Для обеспечения качественной защиты от влаги необходимо знать технологические нюансы
При грамотном подходе к делу можно все сделать самостоятельно, не обращаясь за помощью к профессионалам.
Итак, для проведения работ по гидроизоляции пола, стен и потолка бани из газобетона Вам понадобятся следующие инструменты и материалы: крепежные элементы, шуруповерт, перфоратор, рулетка, канцелярский нож, карандаш для разметки, строительный степлер, двухсторонняя лента Ондутис BL, гидроизоляционная плёнка того же бренда.
Перед непосредственным монтажом плёночного гидроизолятора необходимо провести комплекс работ по теплоизоляции. Для этой цели применяется утеплитель, перфоратор, крепежные элементы и бруски.
Плёнка Ондутис R Термо укладывается на стены и на потолок. В принципе, работы по гидроизоляции разных частей помещения идентичны. Они проводятся в несколько этапов:
сначала теплоотражающая пароизоляционная плёнка раскатывается на ровной поверхности и нарезается на полотнища нужной длины;
на нижнюю часть стены наклеивается тонкая монтажная лента, а затем отрезок плёнки в горизонтальном направлении прикладывается вплотную к утеплителю
На данном этапе следует принимать во внимание весомый момент: материал укладывается гладкой стороной внутрь помещения;
на каркасе полотнища закрепляются с помощью строительного степлера. Потом снимается верхний слой монтажной ленты, а нижний край плёнки плотно прижимается к поверхности;
после того, как первая полоса плёнки прикреплена, можно двигаться дальше
Нужно взять двухстороннюю ленту и приклеить ее к пароизоляционной плёнке. Затем необходимо взять второй отрезок материала и наложить его с нахлестом в десять сантиметров на первое полотнище;
дальнейшие действия аналогичны предыдущим;
на завершающем этапе поверх смонтированной теплоотражающей плёнки закрепляются бруски или профили, предназначенные для монтажа внутренней отделки.
В ходе проведения вышеуказанных процессов нужно помнить один важный нюанс: при укладке пароизоляционных материалов необходимо предусмотреть вентиляционный зазор между отделкой и плёнкой в 2-5 см. Тогда смонтированные материалы будут полноценно выполнять свои функции.
Особенности технологического процесса

Основанием служит песчано-щебеночная подсыпка
Утеплители обладают низкой теплопроводностью, которая сохраняется за счет применения пароизоляционных и влагозащитных пленок. Перед работой нужно изучить пошаговую инструкцию утепления изнутри своими руками кирпичной бани или сауны из пенобетонных блоков.
Изоляция только стен не даст результата, т. к. энергия уходит через стены и потолок парилки. Горизонтальные и вертикальные конструкции утепляются по правилам, чтобы уменьшить потребление топлива и снизить расходы на обогрев.
Утепление пола
Чаще используется пенопласт или экструдированный пенополистирол. Земля под полом выкапывается на глубину 40-50 см от уровня чистого пола, затем насыпается слой песчано-щебеночной подсыпки на высоту 20-25 см. По подушке выполняется стяжка из цемента и песка или делается проливка цементным молочком для скрепления компонентов.
Гидроизоляция состоит из тройного обмазочного слоя битума или прокладывается 3 пласта рубероида на мастике. После этого кладется утеплитель, который защищается пароизоляционной мембраной и гидроизоляционной пленкой. Выполняется цементно-песчаная стяжка, поверх которой делается чистовое покрытие пола.
Пароизоляция стен

Мембранная пароизоляция
Чаще для устройства защиты от проникновения влажного воздуха используется полиэтиленовая пленка, но есть другие материалы, которые отличаются эффективностью.
В зависимости от типа помещения применяются:
- в парилке ставится фольгированная изоляция, дополнительно отражающая инфракрасные волны;
- в душевой монтируется фольга или целлофан, крафт-бумага с влагостойкой прослойкой и лавсановым покрытием;
- комната для отдыха и тамбур отделываются простой крафт-бумагой, мембранными изоляторами, пергамином.
Утепление потолка
Для крепления утеплителя на потолок делается каркас их деревянных реек или металлического профиля, который поддерживает слой. Элементы ставятся с промежутком 50 см.
Снизу материала ставится паро- и гидроизоляция так, чтобы пленка не контактировала с утеплителем. На влагозащитной мембране образовывается конденсат, который передается теплозащите и снижает ее свойства. Отделка потолка монтируется на каркас.
Вагонка для обшивки помещения
Следует ответственно подойти к выбору древесины для облицовки. Наибольшая устойчивость к гниению присуща хвойным породам, но при нагревании они способны выделять смолу. Поэтому их лучше использовать при обшивке предбанника или моечной. Из лиственных видов оптимальным сопротивлением обладает дуб, однако, смоченный, он становится скользким. Немаловажный фактор при выборе вагонки – эстетическая сторона вопроса. У кедра, дуба и ольхи насыщенный темный цвет, в то время как лиственница, граб и ель имеют более светлую окраску.

Окна и двери в бане
Их желательно делать деревянными, для чего подойдут сосна или ясень, а покрывать лаком допускается только снаружи, иначе не избежать вредных испарений. По тем же причинам не рекомендуется применение монтажной пены в качестве уплотнителя, лучше использовать натуральные материалы, например, войлок.
Отдельное внимание следует уделить двери в парилку – она должна открываться исключительно наружу и закрываться только на шариковую защелку, чтобы распахнуться просто от толчка или под весом тела, если кому-либо из посетителей станет плохо. Размеры – меньше стандартных (во избежание растраты тепла)

Электропроводка в бане
При самостоятельном монтаже электросети не следует забывать, что в стенах из газобетона кабель, заведенный в гофрированную трубку, прокладывается по штробам, прорезанным в блоках. Предварительно рекомендуется тщательно разработать схему расположения электроприборов, а также точек освещения, розеток и включателей внутри помещения.
Согласно расчетной мощности светильников и других потребителей электроэнергии необходимо подобрать кабель подходящего сечения, чтобы избежать перегрузок и нагрева провода. Так как баня – помещение повышенной влажности, то изоляция электросети должна обеспечивать максимальную безопасность, а розетки не следует располагать слишком близко от пола.
На входе электросети в помещение бани рекомендуется установить коробку-автомат. Также желательно каждую ветку проводки, в соответствии со схемой, снабдить отдельным предохранителем. Это достаточно ответственная часть работ в монтаже электрооборудования, поэтому, если не получается сделать своими руками – лучше пригласить специалистов.

Штукатурная отделка бани из газобетона
Газобетон хорошо впитывает влагу, поэтому внутренняя отделка бани предполагает создание барьера от внешней среды. Материал для гидроизоляции не должен допускать испарения влаги в сауне.
Отделочные работы по оштукатуриванию стен состоят из нескольких этапов:
1. Первоначальная затирка стен наждачной бумагой выравнивает поверхность, избавляет от выступов и шершавостей. Структура газоблока в месте скола восстанавливается при помощи клеящего раствора.
2. Покрытие грунтом в 2-3 слоя сохраняет допустимый процент влажности газобетона.
3. Специалисты устанавливают маяки и сетку из арматуры.
4. Слой черновой штукатурки, а затем и финишная прослойка делают сауну теплее. При желании используется жидкое стекло для дополнительной изоляции.
Специальные смеси для штукатурки сделают парилку теплой и не допустят проникновения влаги в другие отделения сооружения из газоблоков.
Отделка внутри
Выделяют несколько важных свойств, характерных для качественной облицовки:
- материал должен быть экологически чистым (при высокой температуре не допустимо выделение испарений и вредных веществ);
- долговечность, повышенная устойчивость к воздействию влаги и температуры;
- теплоизоляционные качества (при случайном касании к обшивке не должно возникать ожогов и раздражений);
Из лиственных пород деревьев наиболее стойким к воздействию влаги и температуры является ясень. Хвойные породы традиционно более устойчивы, однако они могут выделять смолу, хотя, как показывает практика, небольшие появившиеся капли просто удаляются и не причиняют особых неудобств.
Важно также хорошо проветривать помещение после каждого использования – это придаст дополнительную долговечность внутренней отделке бани и позволит избежать образования грибков и коррозии. В связи с этим парилку можно облицевать ясенем или ольхой, а для моечной, предбанника и комнаты отдыха прекрасно подойдет сосна или ель
В то же время, баня из газоблоков открывает больше возможностей в оформлении предбанника или моечной, где для отделки стен из газобетона можно с успехом использовать и керамическую плитку, которую при наличии некоторых строительных навыков несложно уложить своими руками.

Каркас для вагонки и утепление бани изнутри
После того, как собрана электропроводка, кабеля вложены в штробы и замазаны, начинается отделка внутренних поверхностей. Для улучшения гидро- и теплоизоляции бани из газоблоков стены желательно оштукатурить не только снаружи, но и внутри. По инструкции эти работы производятся после того, как конструкция простоит некоторое время и даст усадку.
Процесс внутренней отделки бани продолжается закреплением поддерживающего бруса для обшивки вагонкой. Использование древесины обязательно в парилке и желательно в комнате отдыха. Моечную можно обложить керамической плиткой.
Свободное пространство в каркасе между обрешеточными брусками заполняют утеплителем. Ни в коем случае не следует использовать пенополистирол (пенопласт), иначе влага будет скапливаться за внутренней отделкой и оставаться там долгое время. Утеплитель должен быть паропроницаемым, неплохо зарекомендовали себя в этом деле стекло- и минеральные ваты.
Обшивка бани вагонкой изнутри производится таким способом, чтобы доски крепились к каркасу вертикально. Это облегчит стекание конденсата на пол и дальнейшее удаление излишней влаги через дренажные отверстия.
Обрешетку с утеплителем покрывают слоем пароизоляционной пленки, после чего приступают к креплению самой вагонки к каркасу. Фиксирование панелей обшивки допускается производить гвоздями, однако, если в будущем возможен демонтаж – лучше использовать саморезы. Так стены из газобетона окажутся достаточно защищенными от впитывания влаги изнутри.
Нюансы отделки бань
Еще раз следует отметить, что:
1. Постройка каркаса бани из газоблоков наиболее проста для осуществления своими руками, материал достаточно прочный и надежный, но требует ответственного подхода к внутренней и внешней обшивке и отделке стен.
2. Газобетон отличается крошащейся структурой, поэтому при креплении к нему элементов внутреннего и внешнего декора следует пользоваться только специальными металлическими дюбелями.
3. Повышенная поглощаемость влаги блоками требует тщательной гидроизоляции фундамента такой бани, а также ее внутренних и внешних поверхностей стен.
4. Облицовка и отделка парилки и моечной может радикально отличаться друг от друга применяемыми материалами: для предбанника и душевой подойдет керамическая плитка, в то время как обшивку парилки и комнаты отдыха настоятельно рекомендуется осуществлять из пород древесины, наименее подверженных воздействиям влаги, высокой температуры, грибков и коррозии.

5. Крайне не нежелательно в элементах декора, обшивки, облицовки и утепления изнутри применять искусственные материалы (пенополистирол, пенопласт, пластик, полиэтилен и другие) – это может привести к выделению вредных испарений во внутреннюю атмосферу помещения при нагревании парилки, и, как следствие – к отрицательному влиянию банных процедур на общее здоровье ее посетителей.
6. После каждого посещения бани из газобетона, облицованной внутри деревянной вагонкой, помещение следует тщательно проветривать и просушивать во избежание появления плесени, грибков, а также коррозии элементов декора и разрушения несущих стен из газоблоков.
Что это за материал
Газобетон — искусственный камень, является одним из видов ячеистого бетона. Своим названием газобетон обязан технологии производства. Его изготавливают так: известь, кварцевый песок и цемент соединяют с водой в смесителе. Затем добавляют водную суспензию алюминиевой пудры, которая взаимодействует с известью. Продукт химической реакции — водород. Он образует в сырьевой массе множество пор (пузырьков) размером от 0,5 до 2 мм, которые равномерно распределяются по всему материалу. За счет этого смесь увеличивается в объеме.

Есть два типа материала: автоклавный и неавтоклавный. Неавтоклавный сейчас практически не используют в строительстве, а вот баня из автоклавного газобетона — не редкость.

Отделочные работы
Внешние
Наружную часть стен нужно загрунтовать специальным составом с водоотталкивающими свойствами — это защитит от агрессивных внешних воздействий. Можно воспользоваться декоративной штукатуркой или отделать фасад сайдингом: помещение будет прогреваться быстрее и остывать медленнее.

Внутренние
Баня должна быть теплой и выглядеть эстетично. Отделка бани из газоблоков внутри может быть практически любой: дизайн ограничен лишь фантазией владельца. Чаще всего выбирают деревянную вагонку — красивый и экологичный материал.
Газобетон сам по себе имеет неплохие теплоизоляционные свойств, но без специального покрытия он впитывает влагу: это ведет к постепенному разрушению. Поэтому отделку стен проводят в несколько этапов.
- Изнутри стены покрывают фольгой — она хорошо герметизирует стены. Материал бывает двух типов: самоклеящуюся фольгу укладывают внахлест, обычную — встык.
- Швы тщательно проклеивают металлическим скотчем. Обязательно оставляют зазор между фольгой и обшивкой из вагонки: он необходим для вентиляции.

Материал облицовки выбирают исходя из особенностей конкретного типа помещения. Отделка внутри бани из газоблока обычно деревянная. Для парной подойдут осина, ольха, липа: эти породы дерева отличаются повышенной влагостойкостью. В комнате отдыха удачным решением станет сосна: она отличается приятным смолистым ароматом. В душевой пол и стены часто отделывают плиткой — в режиме повышенной влажности дерево быстро разрушается, а плитка не страдает.
Важный момент: при забивании гвоздей газобетон может крошиться. Лучше использовать специальные дюбеля.

Как утеплить баню из керамзитобетонных блоков изнутри
Специфическое устройство керамзитобетона сбивает с толку даже опытных банщиков. Секрет грамотного утепления бани из керамзитобетонных блоков изнутри можно понять из видео здесь:
Прежде всего, нужно понять, что керамзит обладает высокой проницаемостью для воздуха, а значит, любой поток воздуха, обдувающий стены бани, легко заставит тепло улетучиваться через пористую керамзитобетонную поверхность. Из-за конвекции потери тепла у бани могут быть выше, чем у газосиликата, так как поры в керамзите на два порядка больше, чем у вспененного силиката.
Облицевать керамзитобетон по наружной поверхности — не очень хорошая идея, таким способом можно запереть водяной пар внутри стены. Остается одно — утеплять помещение керамзитобетонной бани изнутри.
Парилку утепляют минватой, уложенной на двух слоях пароизоляционной мембраны. Поверх изоляции обязательно укладывается фольгированная пленка и выполняется вентзазор.
Для остальных помещений бани используется совершенно иной подход. Комнату отдыха и предбанник утепляют так, как показано на схеме.
Для теплых, но не горячих комнат бани стены из керамзитобетонных блоков оклеиваются обычным пенопластом высокой плотности, толщиной не менее 50 мм для обычного климата, и 100 мм для северных широт. Поверх пенополистирола укладывается армирующая малярная сетка, после чего можно наносить декоративную штукатурку, плитку или любой другой тип декора.
Данная схема блокирует просачивание теплого воздуха через поры и швы керамзитобетона. Такое решение требует оборудования дополнительной приточно-вытяжной вентиляции помещения бани, но зато удается сохранить 90% тепла.
Зачастую перед укладкой теплоизоляции стыки между керамзитобетонными блоками приходится задувать монтажной пеной.
Сравнение изоляционных материалов
При выборе отделочных материалов нужно руководствоваться следующими параметрами:
- Гидроизоляция.
Обшивка стен должна быть устойчива к высокой влажности и воздействию пара.
- Стойкость к высоким термическим нагрузкам.
При эксплуатации не должно возникать коробления, растрескивания или деформации облицовки.
Материалы для отделки бани
- Пожаробезопасность.
Нужно выбирать материал, который не загорится даже при контакте с открытым огнем.
- Экологичность.
Лучше использовать натуральные материалы, не выделяющие при высокой температуре вредных или токсичных веществ.
- Прочность и долговечность.
Внутренняя отделка бани из пеноблоков делается не на один год. От этих критериев зависит, как часто она будет требовать ремонта, поэтому выбирайте облицовку, менее подверженную механическим, химическим и термическим повреждениям.
- Гладкая поверхность.
Выбор изоляторов для утепления стен бани из керамзитобетонных блоков базируется на следующих критериях:
- удобство монтажа, возможность быстрой сборки;
- функциональность;
- термоустойчивость;
- теплосбережение;
- гигроскопичность.
Наиболее популярно тепловолокно, оно привлекает безопасностью и универсальностью – его можно применять как изнутри, так и снаружи. Перед монтажом необходима предварительная подготовка стен – их очищение от пыли, грязи, оштукатуривание. Последняя мера также служит дополнительной изоляцией.
Натуральный джутовый войлок прост в укладке и не предъявляет специфических требований к условиям. Это эффективный, экологически чистый вариант. Пенопласт и минеральная вата имеют неплохие изолирующие характеристики, привлекают дешевизной, небольшим собственным весом, удобством монтажа. Минвата здесь более предпочтительна, так как она не вызывает интереса у грызунов.

Керамзитовый утеплитель применяют для утепления бани из блоков
Керамзитовый утеплитель все еще сохраняет актуальность, так как он сыпучий, им можно укрепить лишь потолок и пол. Базальтовая вата огнеупорна, в ней не размножаются плесень и грибки, она прочна и экологична. Вспененный полипропилен используется в тандеме с фольгой, такое сочетание может выдержать нагревание до 150°С.
Используемые материалы
Если в качестве основной конструкции был использован деревянный сруб, то утеплить его можно натуральными материалами, такими как лен, мох, пенька. В таком случае можно быть абсолютно уверенными в полной безвредности природных материалов.
- Дело это требует больших трудозатрат, а также постоянного обновления, поскольку это отличный материал для птичьих гнезд. Да к тому же он подвержен гниению и образованию грибка.
- Поэтому на рынке стройматериалов появились современные утеплители, которые не столь экологичны, но просты в монтаже и обладают хорошими эксплуатационными свойствами.

Пенополистирол
Отличается хорошими теплоизоляционными свойствами, при этом очень легкий и экономичный. Материал отлично противостоит влаге, но при высокой температуре подвержен деформации и риску возгорания.

При нагреве происходит выделение ядовитых веществ, поэтому в парилках пенополистирол практически не используют, разве что в предбаннике. Пенопласт схож по свойствам, но более устаревшая модификация.

Базальтовое волокно
Очень хороший материал для теплоизоляции бани. Каменная вата изготавливается из расплавов горных вулканических пород.









Это объясняет у нее существование таких замечательных свойств:
- Негорючесть;
- Хорошая сопротивляемость механическим нагрузкам и влаге;
- Отличная теплоизоляция;
- Поглощение шумов;
- Долгий срок службы;
- Простой монтаж.
При больших плюсах базальтовое волокно имеет существенный недостаток – высокую стоимость.

Минеральная вата
Очень напоминает каменную вату, однако производится из металлургических отходов, поэтому получила название шлаковой ваты.

Обладает весьма доступной ценой и следующими достоинствами:
- Хорошая влагостойкость;
- Низкая теплопроводность, что позволяет задерживать тепло в помещении;
- Высокая поглощаемость шума.

Недостаток материала заключается в его неустойчивости к механическим нагрузкам, что создает сложности при монтаже.

Стекловата
В состав сырья входят тонкие нити неорганического стекла, поэтому работать необходимо в защитной одежде. Материал хорошо сохраняет тепло, обладает неплохой паропроницаемостью и обладает приемлемой ценой.









Пенополиуретан
Относится к новейшим технологиям и представляет полиэфир с добавлением воды, диизоцианата и эмульгаторов. Смесь заправляют в распылитель и равномерно распыляют на стену. После высыхания поверхность становится влагостойкой, поглощает шумы, обладает высокими теплоизоляционными свойствами и химически нейтральна.

Фольгированные материалы
Существенными достоинствами таких утеплителей является то, что они, отражая инфракрасный свет от печей, поддерживают в бане устойчивую температуру.
- Теплоизоляторы выдерживают длительное время высокие температуры и практически не горят, да к тому же обладают пароизоляционными особенностями.
- Материал представляет собой слоистую структуру из полированного алюминия и вспененного полиэтилена, либо металлизированный лавсан на узкой поверхности вспененного полипропилена.

К недостаткам следует отнести высокую стоимость и возможность легкого повреждения при монтаже.

Фольгированный скотч
Относится к вспомогательным материалам, служащим для улучшения герметичности основания. Им фиксируют стыки плит теплоизолятора. Скотч также отлично отражает тепловые лучи, поэтому и используется при монтаже.









Инструкция по строительству дома из газосиликатных камней
Возводят стены из газосиликатных блоков двумя способами:
- В два ряда. При двурядной кладке допускается применение цементно-песчаной смеси, потому что температурный мост будет перекрыт вторым рядом блоков.
- В один ряд. При возведении стен в один ряд профессионалы настаивают на применении промышленного клеевого состава, который разводится согласно рекомендациям производителя. Консистенция раствора должны быть как густая сметана. Смесь наносится на газосиликатные секции при помощи зубчатого шпателя или специальной каретки. Клей, который вылез при утрамбовке блока, нужно не затирать, а удалять мастерком.
Стены из газосиликата возводят в следующем порядке:
- формируется гидроизоляционная подушка;
- устанавливаются маячки для угловых секций и натягивается шнур для контроля;
- укладывается 1 ряд на раствор из цемента и песка;
- разводится клеевой раствор для кладки всех остальных рядов;
- выполняется кладка последующих рядов секций;
- формируются перемычки;
- постоянно производится проверка ровности кладки по вертикали и горизонтали.
Первый ряд
Монтаж первого ряда делают на гидроизоляционную подушку, используя раствор песка и цемента.
Раствор помогает выровнять первый ряд относительно фундамента или цоколя.
Толщина цементного слоя должна быть не менее 20 мм. Если есть необходимость положить в некоторых местах более толстый слой раствора (30-45 мм), то выполняется армирование.
Первый ряд должен получиться идеально ровным, поэтому для контроля обязательно используют шнур-причалку и уровень. Подправляют установку блоков резиновой киянкой.
После укладки каждого ряда, его поверхность, при необходимости, выравнивается металлической теркой, чтобы исключить перепада высоты. Впоследствии это поможет избежать появления вертикальных трещин на стенах. После выравнивания поверхности пыль обязательно нужно смести щеткой.
Последующие ряды
Все дальнейшая работа по возведению стен выполняется с использованием клеевой смеси, которая при помощи каретки или зубчатого шпателя наносится на место, куда будет уложен блок, а также на боковую сторону рядом стоящей секции.
Блок выравнивается по горизонтали и вертикали, а при помощи легких уверенных ударов резиновым молотком прижимается к предыдущей секции. Все секции следует класть со смещением относительно тех, что в нижнем ряду, желательно на половину длины газосиликатного блока.
При работе в жаркую погоду газосиликатные секции следует увлажнять водой, чтобы сухой блок не втягивал в себя воду из раствора, а хорошо с ним скреплялся.
Работа по укладке каждого ряда начинается от угла, обязательно натягивается шнур для контроля ровности. При работе следует помнить о проекте и оставлять проемы для окон и дверей и производить армирование после каждого третьего ряда.
Армирование стен
Газосиликатные блоки более хрупкий материал, чем, например, кирпич. Он чувствителен к малейшим перекосам, вследствие чего возникают трещины. Армирование стен из газосиликата не увеличивает мощность несущих стен, но предупреждает появление трещин.
армирование непременно производят:
- в первом ряду;
- после каждого третьего ряда стены;
- в местах перемычек, оконных и дверных проемах;
- в кольцевой балке в местах перекрытий;
- под стропильным устройством кровли.
Для укрепления стен способом армирования используются плоские «лесенки» или круглая арматура.
Сначала штроборезом в центре поверхности кладки делают канавки (штробы), заполняют их клеем и утапливают в нем арматуру. Излишки клея убирают.





































